_Casa AV_
Set in woodland in Mar Azul, in the coastal outskirts of Buenos Aires, ‘Casa AV’ is one of a series of summer houses started in 2004 as a study in possible forms, materials and programs which quietly integrate into the picturesque landscape. Designed by BAK arquitectos (who have since split into Besonias – Almeida and Luciano Kruk), Casa AV was completed in 2011.
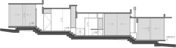
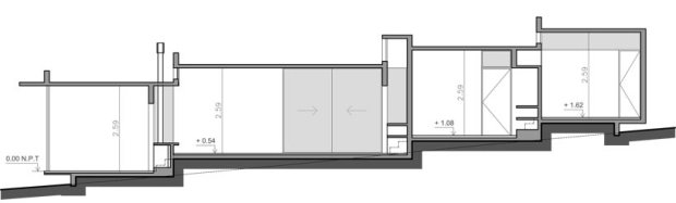
The house is intended as a summer rental residence. The design of the house is a direct response to the site conditions, location, and use. The 110 sq/m plan is organised as a series of four simple volumes that work around the landscape. The different uses are accommodated naturally on the slope of the site. These volumes are stepped by 54cm between them, allowing the house to follow the contour of the landscape. The house has no direct neighbours, so the architects were free to orient it in the most efficient way.
Allowing light into the house was a problem in the thickly forested site. The architects responded by conceiving it as a ‘semi-covered’ structure with large panes of glazing allowing for both integration of the interior with the surroundings with views in all directions, and long hours of natural illumination.

inside/outside

kitchen and dining

living and dining

the living end of the house opens up onto the landscape

outside/inside

view down the circulation axis
Photographs: © gustavo sosa pinilla
Drawings: BAK arquitectos







