_Ski Restaurant, Radusa_
Croatian firm 3LHD Architects completed this restaurant in 2011, outside Uskoplje-Gornji Vakuf, a town once known for being among the first places to suffer from the croat-bosniak war.
The restaurant at Ski Center Radusa is a quiet architectural gesture, which adds a gentle slope to the landscape while enjoying unparalleled views of the alpine valley. At a height of 1720 meters, it is conceptually centered around the idea of a pavilion lookout.
The irregular shape of the building was arrived at by reinterpreting the existing terrain. Its gently sloping roof integrates topographically and allows the structure to blend into the surrounding landscape. The fractured surface of the roof rises and returns into the terrain, and the restaurant facilities are neatly tucked under it.
Two terraces are located on opposite glass facades of the pavilion. The south entry terrace allows outdoor après-ski program, and the northern looks out onto the surrounding Bosnian mountains and Uskoplje valley.
Visitors can take refuge from the slopes and gather around a large, open fireplace within the single volume space.
The client/investor was also the main contractor and the steel roof structure with 5mm thick steel sheet panelling and all other construction materials were manufactured in local factories in Uskoplje. The complete interior and the furniture were designed and manufactured from local wood.
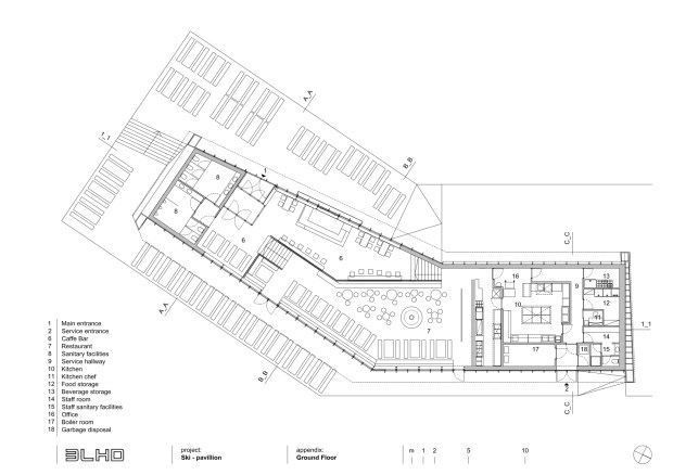
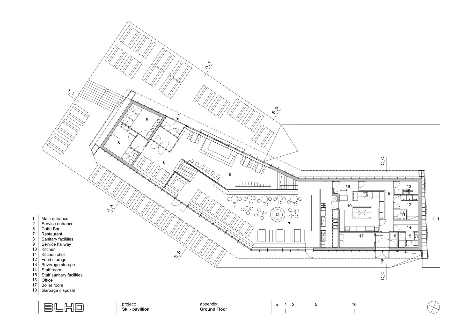
Drawings courtesy: 3LHD Architects
All photos: pegasus.ba













