_Residencia José Roberto Filippelli_

I like to think that my appreciation for modern architecture and design was born in this house, where I briefly lived as a child. Located in the residential neighbourhood of Morumbí, in São Paulo, it was designed by the brazilian architect Ruy Ohtake for my family. We lived there from 1972 until we moved to Europe in 1975. Officially known as Residencia José Roberto Filippelli, to this day we refer to it as ‘nossa casa do Morumbí’ (our house in Morumbí), although it was sold decades ago.

The house was awarded the Carlos Barjas Millan Prize from the Brazilian Institute of Architects, in 1971. In December 2013 it received an even greater accolade from the city of São Paulo by being listed together with other 5 houses from the architect.

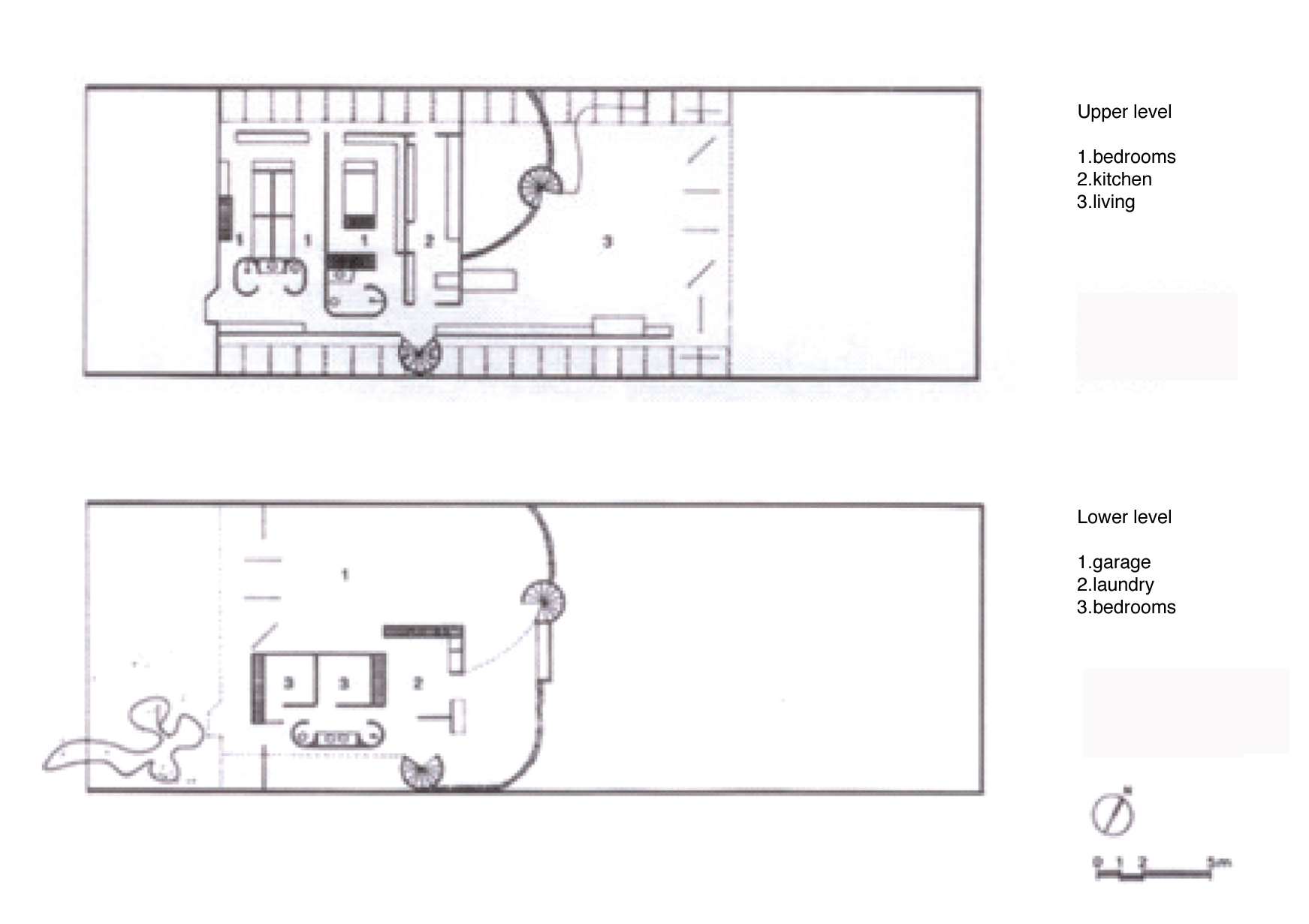
Built almost exclusively in exposed reinforced concrete on a plot with approximately 6 meters difference between the front and back, the approach from Ruy Ohtake was to organise the main living, sleeping areas and garden on a single semi-elevated level, partly sitting on the ground and partly supported by reinforced concrete structures.

24.Brazil_residencia-jose roberto-filippelli_ruy_ohtake_garden

View from garden with the dominant roof structure. Skylights both sides, just seen.

24.Brazil_residencia-jose roberto-filippelli_ruy_ohtake_juliana-filippelli-in-garden

My sister fooling around, with the pivoting glass doors beyond (photo:JRFilippelli/MERicciFilippelli)

The living area opens up almost entirely to the garden by means of pivoting frameless glass doors, blurring the boundary between inside and outside.

The concrete joists of the vast flat roof rest on the side walls. These in turn support the roof slab, constructed of reinforced concrete in the central zone and glazed on both sides. Most of the illumination to the house (on both levels) comes from these glazed strips of roof. Additional light pours into the living room from the garden through the glass facade described above.

24.Brazil_residencia-jose roberto-filippelli_ruy_ohtake_side_silvia_filippelli

Me, aged about 4, in the skylighted area flanking the living room. The mushrooms provide light to the lower level (photo:JRFilippelli/MERicciFilippelli)

The lower level, occupying the front half of the plot area, houses the garage, laundry and services.

24.Brazil_residencia-jose roberto-filippelli_ruy_ohtake_garage_silvia-filippelli

Garage entrance. The door panels are in a multitude of colours, contrasting with the rawness of the concrete (photo:JRFilippelli/MERicciFilippelli)

The levels are linked by two spiral staircases which also serve as structural support. The main one connects the entrance and garage to the living area through a double height space. A smaller one connects the service areas and raises up to the roof as structural support for the water tank.

24.Brazil_residencia-jose roberto-filippelli_ruy_ohtake_interior-view-from-staircase_skylight-jus-seen

View from the double hight space and main stairs towards the living area and garden beyond (photo:JRFilippelli/MERicciFilippelli)

A peculiarity of this house is the lack of a wall or gate separating the entrance from the street. It is one of the few in the area. Instead the street extends into the entrance. Despite this the house has never been burgled. Or perhaps it is this openness to the street that has deterred intruders.

24.Brazil_residencia-jose roberto-filippelli_ruy_ohtake_facade_large

The facade in the 1970’s

24.Brazil_residencia-jose roberto-filippelli_ruy_ohtake_living-area_google maps

The house in 2011 (Google Maps)

One of the key characteristics of Ruy Ohtakes interiors is the use of built in concrete furniture. These are integral to the aesthetic and spacial arrangement. Slabs of concrete form the base for mattresses in the bedrooms and for cushions in the lounge area. Circular concrete tables sprout up from the ground and most dramatically, a 3 meter long cantilevered slab forms the dining table. These features, although striking,  make the spaces rather inflexible. My father recalls meeting Ruy Ohtake and telling him that my mum was pregnant with my sister (their third child). He looked at my dad in horror and said: “No …. no! you can’t do that!”

24.Brazil_residencia-jose roberto-filippelli_ruy_ohtake_living-area_post-party

The integrated furniture in the living room and post party evidence (photo:JRFilippelli/MERicciFilippelli)

The garden originally had a sand pit at the rear, which was later replaced by a swimming pool. That new addition, together with a large concrete barbecue, transformed the life of the house. Friends and family gathered there on most weekends. My parents hosted wedding parties for friends, and many tears were shed watching the 1974 football World Cup.

The house was not without issues – too hot in the summer, too cold in the winter – but I think I can speak for my parents when I say that the strongest memories of our ‘casa do Morumbí’ are of a house filled with friends and laughter.

24.Brazil_Residencia-Jose-Roberto-Filippelli_plans

Plans

24.Brazil_Residencia-Jose-Roberto-Filippelli_sketch plans

Sketch plans and long section